Tackling A National, 550-Location As-Built Survey Program in Record Time
When a large quick service restaurant chain wanted to remodel 550 locations in a year, they chose PPM as their As-Built partner. By quickly understanding their needs, adapting to their preferred communication rhythm, and deploying our nationwide network of surveyors, we were able to deliver all their plans on time and within budget.
We first heard from our new client in June of 2017. They were on the hunt for a reputable As-Built partner to capture all physical store information needed to prepare for upcoming strategic initiatives. We worked with several members of their internal architecture and construction teams over the next month to determine, prioritize, and document their requirements for this project.
The company needed accurate As-Built plans of all of their restaurants for two primary business initiatives.
Two Primary Goals:
1. Remodel to Expand Carryout Capacity
They were looking to remodel their kitchens to expand capacity for preparing carryout and catering orders. As part of this initiative, an update to the area used for their digital ordering system was also required.
2. Gain Knowledge Gain Knowledge of Store Plan Layout for Planning
The client wanted a comprehensive update of their physical store information for facilities management and other future store planning projects.
As-Builts Delivered
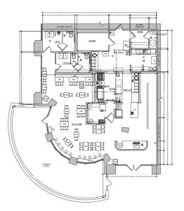
Based on their needs, we worked with the client to develop a detailed scope of work. The architectural As-Builts included a detailed Floor Plan with Kitchen Layout, Reflected Ceiling Plan, Roof Plan, and Electrical Plan. At their request, we provided an electrical line diagram as well (which included tracing and mapping of their panel schedule to show the connections between each individual outlet to the corresponding circuit on the panel). For photography, we provided both still photos as well as a 360-degree “Virtual Walkthrough” of each location using the Matterport platform.
About 6 weeks into these discussions, our client gained confidence and trust in PPM’s capabilities and decided to test us with an initial batch of 33 locations across California, Colorado, and Texas. They wanted the surveys completed in 10 weeks, between August and October of 2017, so we developed a schedule to meet their deadline. The schedule allowed room for several rounds of feedback on the Deliverables to guarantee the final product was exactly what our client needed.
The company was very impressed with our ability to deliver on schedule, as well as our service, communication, and extremely precise As-Built drawings. After further internal planning through the end of the year, they awarded us 334 locations in January of 2018, and we were off to work.

Our Multi-Site As-Built Survey Process
For a High Volume, Nationwide As-Built Program
Our first order of business was to create a program schedule. We were provided the list of 334 locations all over the country and a deadline of June 15th to deliver all surveys. With a few weeks of time to ramp up, this meant we would need to average about 20 completed surveys per week. Within this 4-month program, the client had different deadlines for the six geographic regions in which the stores were located – a challenge our seasoned Multi-Site program manager was easily able to organize. The client allowed us to determine the specific order and schedule to meet the deadlines, which was extremely helpful as it enabled us to group the surveys together by location and proximity, allowing for more efficient travel and the flexibility to work with each surveyor on a schedule that best fit their availability.
Second, we put together the best resources to fit this Multi-Site program. This required field surveyors, drafters, QA staff, and dedicated project management team. Over the course of the program, there would be as many as 50 different people that worked on the surveys in one capacity or another. In addition to human resources, we also had to make sure that we had the specialized equipment needed to perform the survey at every location. This included surveying tools, Matterport cameras, and electrical testing gear.
Finally, we had to develop a scalable and repeatable process that would consistently deliver a high-quality As-Built product that met the client’s exact specifications for every location. We had already worked out most of the process in the pilot round of 33 locations, but now with a higher overall volume and weekly output, we had to tighten things up even more.
For faster and more detailed data collection, we used a 3D laser scanner on approximately half of the locations while the resulting “point cloud” data that we captured was converted into highly accurate As-Built plans by our CAD teams. For the second half of the restaurants, our professional survey crews used laser distance meters and laptop computers onsite to capture, record, and draw the As-Builts plans.
Prior to delivery to the client, every plan was extensively reviewed by our QA team in Long Beach. They compared each plan to the digital photography to make sure nothing was missing or drawn inaccurately. The final step was to place the drawings into the client’s CAD template and make sure we met all of their specific standards and preferences.
All of this planning and teamwork paid off – we were able to deliver all 334 surveys before the requested deadlines. Our client rewarded our strong performance by giving us another batch of 175 locations in early July. This batch came with a September 28th deadline, which meant that we would once again need to maintain a delivery pace of about 17 locations per week. We streamlined a few more parts of the process including field scheduling and QA, and once again delivered all of the surveys on-time and to the client’s exact standards.
Challenges are an Opportunity to Provide Great Service
Even a single As-Built survey can run into unexpected challenges. When you’re surveying 500+ locations, you better be prepared for a few surprises, changes, and other potential obstacles. This case was no exception.
Challenge 1: Ambitious Timelines
The first challenge was the aggressive program timeline. We didn’t know how many locations we would receive and what the deadline would be until the day it arrived in my email. The timeline was so important to our client that we wanted to be 100% certain we would be able to meet every deadline. This commitment to timeliness was so critical that it actually caused us to make the difficult decision to turn down an additional 30 locations in the final batch. When we crunched the numbers, we realized that we just couldn’t make it work within the deadline, so we stuck with 175 locations. Our client was very pleased that we were honest about our capabilities and didn’t over-promise.
This program required that we meet a consistently high pace, often approaching 20-25 deliveries per week, with a highly detailed, labor-intensive scope of work. Because we didn’t want the process to come down to the wire, we front-loaded the schedule with field surveys, which allowed more time for our quality assurance team to inspect everything and make any necessary revisions before the requested deadline.
The additional resources that the program required, both employees and vendors, were also a major challenge. With this number of people, we created custom project management tools to make sure the status of every location was tracked. Work segments were clearly assigned, and the client was always updated with the survey status of each location.
Challenge 2: Undisruptive Process
Another challenge was working in the restaurant environment. Our client’s stores got really busy around 11:30 AM and stayed busy for most of the day. Because of this, we had to complete the surveys before business hours. Typically, we would start around 3 or 4 AM to eliminate interference with their customer service and finish up most of the interior work before their doors opened.
As a result, we were successfully able to deliver all locations on time with a minimum amount of business disruption.

Results for Our Client are Our #1 Priority
PPM is incredibly proud to have been a part of this strategic initiative for our client. By delivering all As-Built surveys on-time and with the exact information required, we were able to
help them keep their kitchen remodel program right on track.
The Director of Architecture of the company agreed, saying: “Thank you for your continued commitment to excellence in delivering accurate and complete data. I appreciate your honesty and your desire to not compromise your company’s integrity. We are thankful for you and your team’s continued diligence as we complete this very important project.”
Planning a Remodel or Expansion?
With a national footprint, a seasoned team of surveyors and drafters, and expertise in large-scale project management, PPM is ready to tackle the thorniest of multi-site jobs.
